J&W Fencing
Pecks Hill, Nazeing, Essex, EN9 2NY
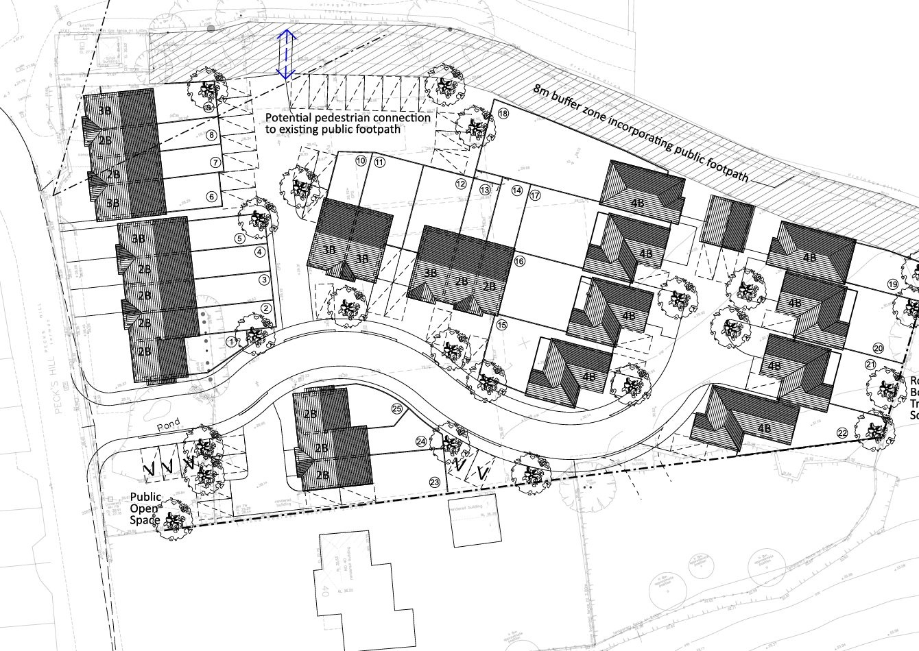
A former fencing centre, situated in the metropolitan greenbelt with outline planning permission for 25 houses.
Acquired off-market on behalf of clients.
Used as a fencing centre since the late 80’s, the previous owners successfully gained outline planning permission for 25 houses. We negotiated terms between the land owner and our client, with completion taking place a few months later.
Investment Summary
Planning Status:
Outline Planning Permission
NIA:
est 30,000 Sq Ft
No of units:
25 houses
Site area:
3.5 acres
Est GDV:
£10,000,000
Land Value:
£3,500,000









