Stotfold Social Club
Arlesey Road, Stotfold, Bedfordshire, SG5 4HA
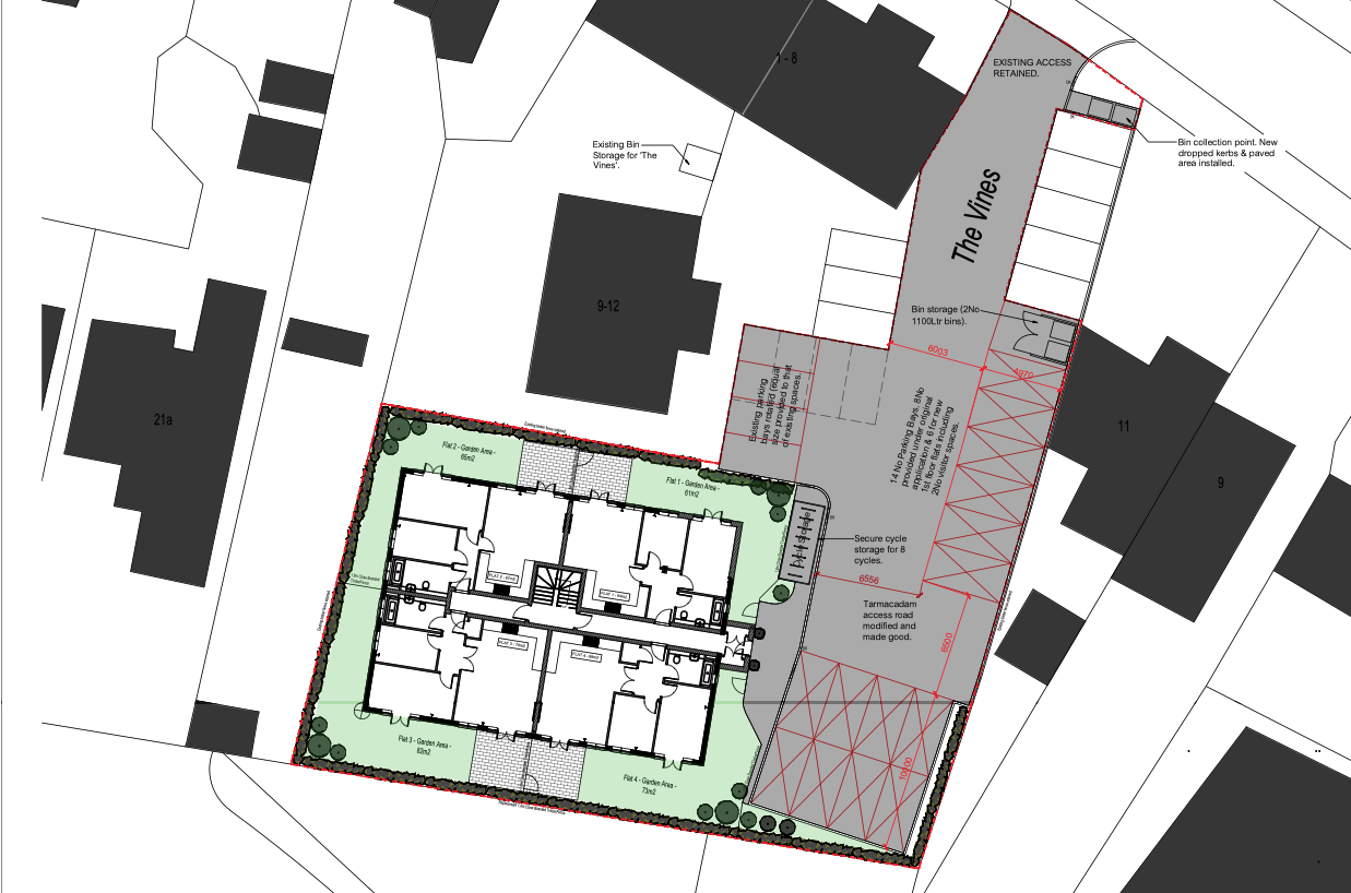
A former social club with planning permission to convert into 6 residential units.
Acquired off-market on behalf of clients.
Located in a popular Bedfordshire town, the site benefited from planning permission for conversion into 6 apartments with parking. We identified this opportunity during the planning process and upon approval negotiated terms between the landowner and our client, with completion taking place a few months after.
Investment Summary
Planning Status:
Detailed Planning Permission
NIA:
4,585 Sq Ft
No of units:
6 Apartments
Site area:
0.3 acres
Est GDV:
£1,700,000
Land Value:
£675,000








