The Venue
Bancroft, Hitchin, Hertfordshire, SG5 1LL
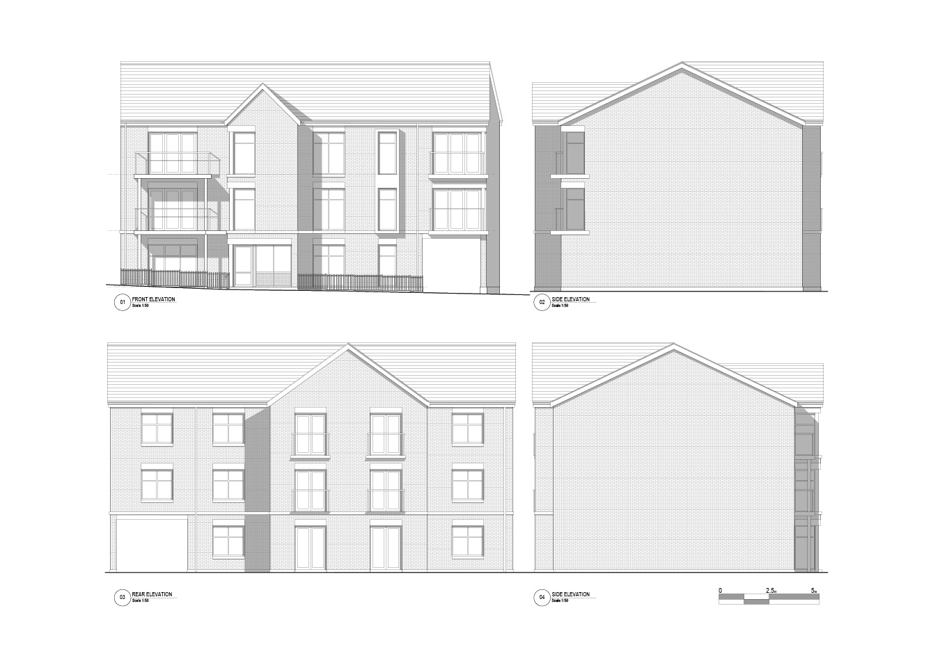
A former Public House with detailed planning permission for 10 luxury apartments.
Acquired unconditionally on behalf of clients.
Located in a highly desirable commuter town, the site benefited from detailed planning permission for the construction of 10 new apartments with parking. We identified the site off-market and a deal was quickly agreed between the vendor and our client. Following agreement of sale, contracts were swiftly exchanged with completion 3 weeks thereafter.
Investment Summary
Planning Status:
Detailed Planning Permission
NIA:
6,969 Sq Ft
No of units:
10 Apartments
Site area:
0.2 acres
Est GDV:
£3,100,000
Land Value:
£1,100,000









