9-15 Hitchin Street
Baldock, Hertfordshire, SG7 6AL
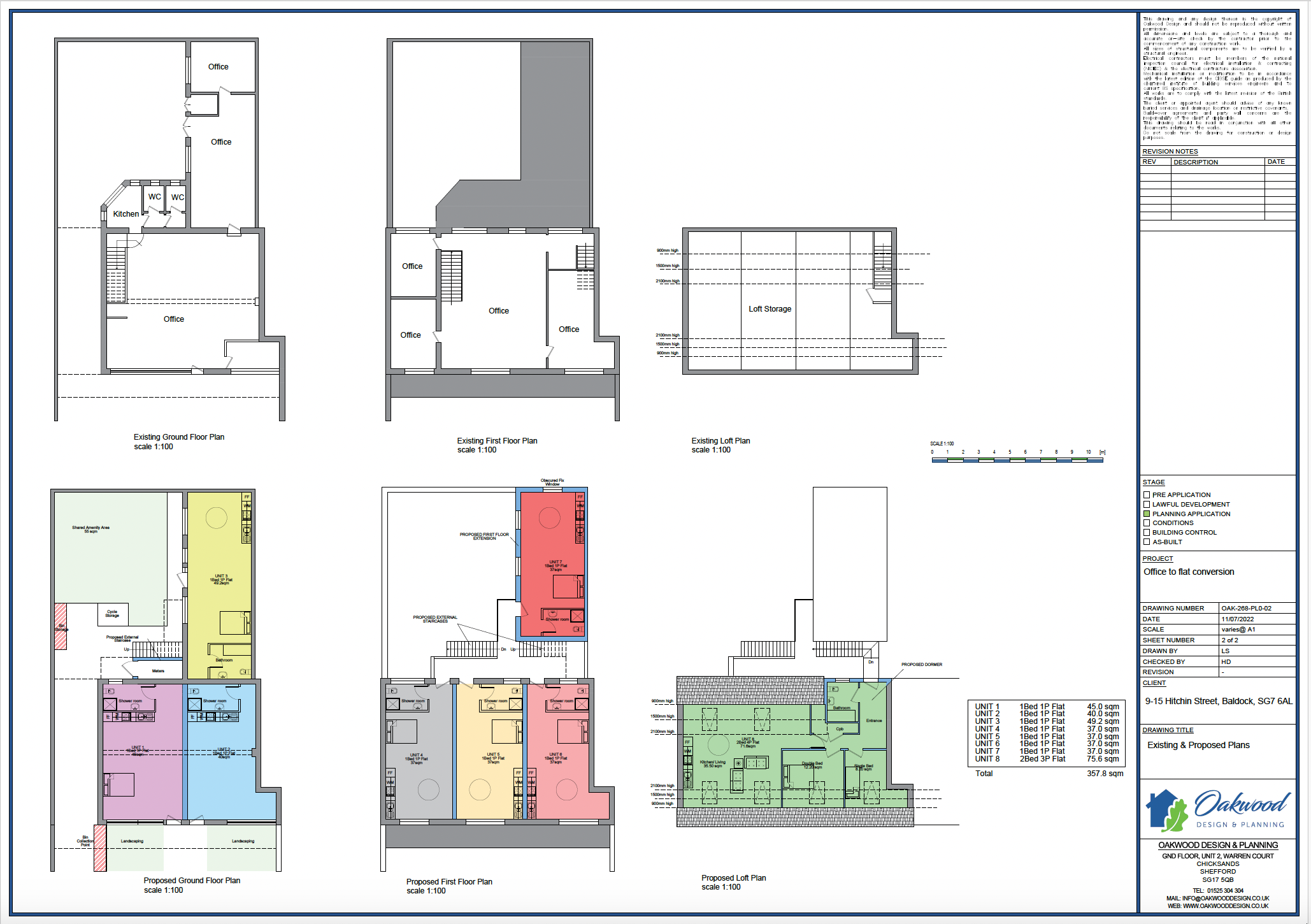
A disused office building with planning permission to convert into 8 residential apartments.
Off-market disposal on behalf of owner.
This former office is located in the centre of Baldock, a historic market town in Hertfordshire. We were approached by the owner and retained for a quiet off-market disposal. The site was offered to a carefully selected shortlist of buyers, with the successful bidder exchanging contracts in 9 days.
Investment Summary
Planning Status:
Full Planning Permission
NIA:
3,807 Sq Ft
No of units:
8 apartments
Site area:
0.1 acres
Est GDV:
£1,500,000
Land Value:
£600,000









